Studio cabine - Germ

Visite virtuelle et vidéo sur notre site internet
Studio cabine - Germ

Réf. 395
Germ - 65510
À VENDRE – STUDIO COIN MONTAGNE À PEYRAGUDES

Station de Peyragudes – Hautes-Pyrénées

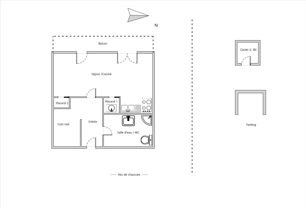
L’agence BELLES VACANCES IMMOBILIER, vous propose ce charmant studio avec coin montagne de 34,68 m2, idéalement situé au cœur de la station de Peyragudes, dans un environnement privilégié pour les amoureux de la montagne et du ski.

* Les atouts du bien :

- Situé en rez-de-jardin d’une résidence appréciée
- Hall d’entrée avec rangements et coin montagne (2 lits superposés)
- Salle d’eau rénovée avec WC
- Pièce de vie lumineuse avec cuisine ouverte
- Balcon exposé plein Sud / Sud-Ouest, parfait pour profiter du soleil et du panorama
- Casier à skis
- Place de parking privative

* Un bien idéal pour :
- Une résidence secondaire à la montagne
- Un investissement locatif à fort potentiel, été comme hiver

* Informations financières :
• Charges de copropriété : 1 928 € / an
• Taxe foncière : 400 €
• Prix Frais d'Agence Inclus : 98 000 €
• Honoraires d’agence : 8 000 €

DPE : D 217 / A 6

Pour plus d’informations ou organiser une visite :
BELLES VACANCES IMMOBILIER
65170Saint-Lary-Soulan
05.62.39.47.48

Un pied-à-terre idéal à la montagne, à découvrir sans tarder !


Charges mensuelles : 161 € / mois
Taxe foncière : 400 €
Montant moyen estimé des dépenses annuelles d'énergie pour un usage standard, établi à partir des prix de l'énergie de l'année 2022 entre 640€ et 910€.
Les informations sur les risques auxquels ce bien est exposé sont disponibles sur le site Géorisques https://www.georisques.gouv.fr
98 000 €
Honoraires : 8.89 % TTC
inclus charge acquéreur
(90 000.00 € hors honoraires)
DPE
kWhEP/m².an
217.00 6.00
GES
kg éqCO2/m².an
6.00
Réf
25185115
Type Base
Vente
Type Bien
Appartement
Code postal
65510
Ville
Germ
Prix de vente FAI
98000
Etage
Rez-de-Chaussée
Nombre de pièces
1
Surface habitable
34.68 m2
Agence
1
N° dossier
395
N° mandat
395
Pays
France
Résidence
LE FORUM
Année de construction
2005
Type de construction
PARPAING
Facade
Crépi / Pierre
Couverture
Ardoises
Meublé
Oui
Digicode
Oui
Nombre d'étages
4
Type cuisine
Aménagée, Equipée, Kitchenette, Ouverte
Type chauffage
Individuel
Mode chauffage
Radiateur
Nature chauffage
Electrique
Nombre de WC
1
Nombre de salles d'eau
1
Nombre de parking extérieurs
1
Nombre de balcons
1
Surface séjour
22.52 m2
Surface balcons
6.51 m2
Dpe conso
217.00
Dpe class
D
Ges émission
6.00
Ges class
A
Orientation
Sud-ouest
Etat général intérieur
Bon
Nous contacter Visite virtuelle VIDEO