Studio cabine - Saint-Lary-Soulan

Visite virtuelle et vidéo sur notre site internet
Studio cabine - Saint-Lary-Soulan

Réf. 383
Saint-Lary-Soulan - 65170
Immobilier SAINT LARY SOULAN

Situé au pied des pistes, au PLA D'ADET la station de SAINT-LARY SOULAN

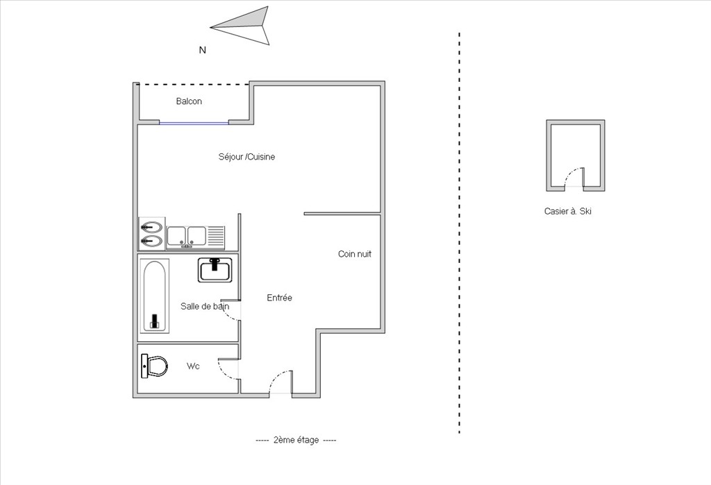
Votre agence BELLES VACANCES IMMOBILIER vous propose cet appartement de Type STUDIO avec Coin Montagne de 26,61 m2, d'une capacité de 4 couchages.

Exposé NORD OUEST ce studio coin montagne se compose :
* d'une entrée avec placard
* d'un coin montagne de 2 couchages avec lit deux personnes
* d'un salon / séjour avec cuisine équipée
* d'une salle de bain
* d'un toilette séparé.

Le bien dispose en sus d'un casier à skis.

Charges de copropriétés de 771,82 € / an
Taxe foncière : 608 €
Taxe d'habitation : 657 €

Ce bien vous séduira par sa situation : au pied des pistes "front de neige" au dessus de l'école de ski et à deux pas de la gare du téléphérique pour rejoindre le village en 6 mn.
A deux pas des commerces et d'une supérette pour les croissants chauds du matin !

Si vous recherchez un bien pour vos vacances à la montagne, avec un potentiel locatif été et hiver
n'hésitez plus ! cet appartement est fait pour vous.

PRIX HONORAIRE D'AGENCE INCLUS : 69 000 €
Honoraires d'agence : 7 000 € TTC
Vendu meublé

Notre conseiller Philippe est joignable au numéro suivant :
05.62.39.47.48


Charges annuelles : 772 € / an
Charges mensuelles : 772 € / mois
Taxe habitation : 657 €
Taxe foncière : 608 €
Montant moyen estimé des dépenses annuelles d'énergie pour un usage standard, établi à partir des prix de l'énergie de l'année 2022 entre 630€ et 880€.
Les informations sur les risques auxquels ce bien est exposé sont disponibles sur le site Géorisques https://www.georisques.gouv.fr
69 000 €
Honoraires : 11.29 % TTC
inclus charge acquéreur
(62 000.00 € hors honoraires)
DPE
kWhEP/m².an
272.00 8.00
GES
kg éqCO2/m².an
8.00
Réf
25185106
Type Base
Vente
Type Bien
Appartement
Code postal
65170
Ville
Saint-Lary-Soulan
Prix de vente FAI
69000
Etage
Rez-de-Chaussée
Nombre de pièces
1
Surface habitable
26.6 m2
Agence
1
N° dossier
383
N° mandat
383
Pays
France
Résidence
GARLITZ ALTITUDE
Année de construction
1988
Type de construction
PARPAING
Facade
Crépi
Couverture
Ardoises
Meublé
Oui
Interphone
Oui
Nombre d'étages
3
Type cuisine
Aménagée, Equipée, Kitchenette, Simple, Ouverte
Type chauffage
Individuel
Mode chauffage
Radiateur
Nature chauffage
Electrique
Nombre de WC
1
Nombre de salles de bains
1
Nombre de balcons
1
Dpe conso
272.00
Dpe class
D
Ges émission
8.00
Ges class
B
Orientation
Sud-est
Etat général intérieur
Bon
Nous contacter Visite virtuelle VIDEO